Charming top floor apartment with a wonderful view over Altschwabing
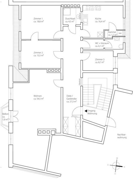
The exclusive attic apartment offered by us is located on the 4th floor (without elevator) of a listed corner house. Extremely charming old building ambience with herringbone parquet flooring, mullioned windows/coffered doors and a room height of up to 3.20 m. Almost 55 m² light-filled living/dining area with small south-facing balcony, attractive eat-in kitchen, two nicely cut bedrooms with large dormers, walk-in closet, study, modern bathroom, guest toilet.
- Property
- ETW 2594
- Property type
- Apartment
- Construction year
- 1929
- Monument protection
- yes
- Floor
- 4. OG
- Lift
- no
- Living space
- approx. 155 m²
- Room
- 3,5
- Fitted kitchen
- yes
- Guest toilet
- yes
This property is already sold.
- Original preserved oak herringbone parquet flooring
- White muntin windows and coffered doors
- Kitchen with historical iron stove
- Pantry with washing machine connection
- Two beautiful bedrooms with dormers
- Study, modern bathroom, guest toilet
- Walk-in closet
- Large storage and cellar compartment
Coveted residential location in the western part of Altschwabing surrounded by stately Wilhelminian and Art Nouveau architecture with lots of old trees - central and yet absolutely quiet. Shopping facilities, schools, the subway "Bonner Platz" and the English Garden are within walking or cycling distance.
Other offers nearby
Munich - Maxvorstadt / near the art academyReady for interior fit-out: living on 3 levels with roof terrace
Living approx. 138 m² - 3 rooms - 1.490.000€
Munich - Maxvorstadt / Near ElisabethmarktStylish 2-room apartment in an old building with terrace facing the quiet inner courtyard
Living approx. 57 m² - 2 rooms - 910.000€











